
Маленькая квартира для работы из дома – проект студии NomadForm
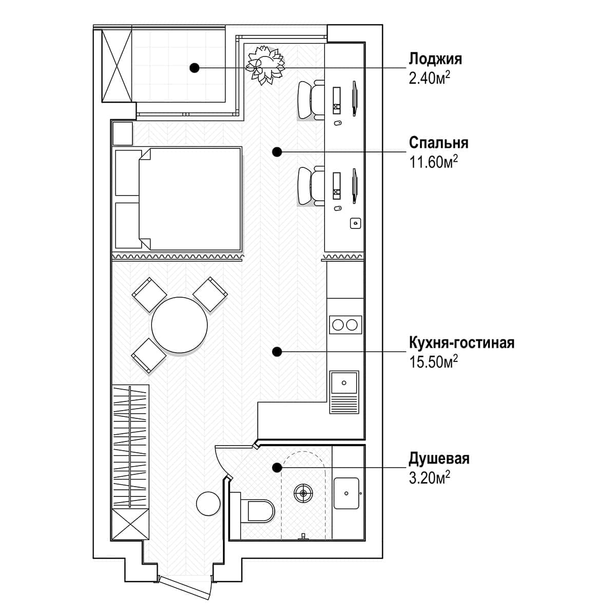
Игорь и Мария Седьмовы, дизайнеры студии NomadForm, продумали интерьер небольшой квартиры для пары: на 30 м2 требовалось организовать пространство для встреч с друзьями, спальню, полноценную кухню и домашний офис.
- Локация: Москва
- Площадь: 30 м2
- Авторы: NomadForm
- Фото: Полина Полудкина
В проектировании небольших квартир самое важное – грамотная планировка. Студии NomadForm удалось создать квартиру, не стесненную рамками маленького метража. Кухню организовали с удобной зоной хранения – заказчики любят готовить, так что для них это было важным условием. А так как они работают из дома, то еще одним важным моментом было организовать полноценные рабочие места. Кухню со столовой отделили стеклянной перегородкой от спальни и кабинета. Со стороны спальни предусмотрены шторы: если их закрыть, комната становится камерной и изолированной. Зонирование пространства при помощи цвета позволило создать ощущение разнообразия. Стена в зоне столовой окрашена в синий оттенок, а ванная комната – окрашен в зеленый цвет. Зону душа было решено не ограничивать пространство перегородками, только шторами из влагоотталкивающей ткани в цвет стен.












