
Эстетский интерьер екатеринбургской квартиры под сдачу в аренду — проект команды архитекторов А77
Главной задачей сооснователей студии А77 Кристины Кирсенко и Ксении Карабановой было создание необычного пространства под сдачу в аренду. Его требовалось наполнить авторскими предметами, которые будут отвечать ожиданиям потенциальных жильцов — творческих ценителей эстетики. В небольшой квартире дизайнеры проработали каждый квадратный метр, уделив особое внимание организации хранения. Так, даже ведущий на террасу подиум служит ящиком для музыкальных пластинок. На открытом воздухе предусмотрена дополнительная зона отдыха с мебелью бренда Delo.
- Локация: Екатеринбург
- Площадь: 55 м²
- Авторы: Студия А77, Кристина Кирсенко, Ксения Карабанова
- Фото: Максим Лоскутов
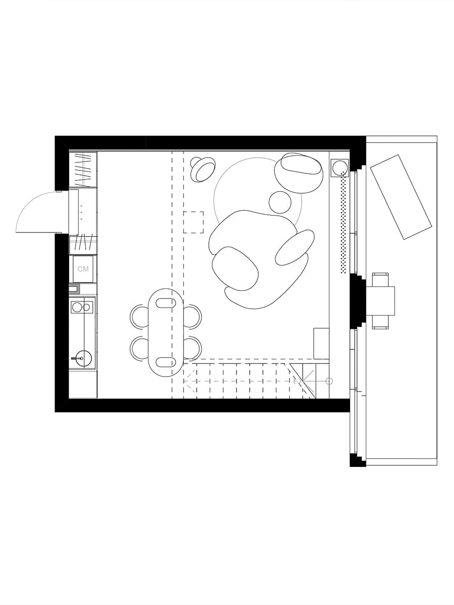
Существующее планировочное решение пришлось полностью преобразить: оно не подходило запросу заказчика. За счет новой компоновки функциональных зон хозяева будут чувствовать себя свободно даже во время приема гостей. Визитной карточкой проекта стала монохромная цветовая гамма, на фоне которой особенно эффектно смотрится пластичная лестница белого цвета. Ощущение тепла и уюта интерьеру придают деревянные панели. Первой фокусной точкой при входе в квартиру выступает композиция из журнального столика ПетроБетон, скульптурного торшера и модульного дивана, выполненного на собственном производстве студии. Простота предметов отсылает к умиротворяющей атмосфере арт-галереи. В монолитной форме пространства с отделкой из штукатурки и микробетона невозможно не заметить стену из натурального шпона. За фасадами от пола до потолка скрываются полноценное место для готовки, постирочный блок, прихожая и зона с дополнительным хранением. Согревающая текстура дерева служит фоном для обеденного стола из массива бренда Fondem. Дополняющие его стулья и подвесы созданы дизайнером Александром Каныгиным. На второй этаж ведет изогнутая лестница, которую Кристина Кирсенко и Ксения Карабанова расположили напротив террасы. Благодаря ей жильцы будут спускаться с красивым видом на город. Несмотря на небольшой метраж, в пространстве удалось выделить рабочий стол из магазина MANUAL MODE. Акцентом здесь оказалась настольная лампа Hay, которую заказчица привезла из путешествия. Для визуального увеличения прохода за спиной у сидящего появилось панорамное зеркало с подсветкой. Спальное место представляет собой подиум с округлыми ступенями. В его изголовье установлено бра Центрсвет — почти незаметное, но практичное.















