Магия контрастов в интерьере светлой квартиры для семьи с ребенком — проект студии Art-Ugol
Магия контрастов в интерьере светлой квартиры для семьи с ребенком — проект студии Art-Ugol
Владелица этой квартиры в новосибирском ЖК Flora&Fauna обратилась к Илье Котельникову, Максиму Павленко и Ирине Олейниковой с просьбой создать стильный интерьер для ее семьи с маленьким ребенком. Главным пожеланием заказчицы был баланс между контрастными материалами — оформление хотелось сделать акцентным и полным разных фактур, но при этом не пестрым. Особое внимание девушка попросила уделить наполнению мастер-санузла: там предстояло разместить отдельно стоящую ванну и добиться расслабляющей атмосферы, поскольку комната станет полноценной зоной отдыха и перезагрузки.
Локация: Новосибирск
Площадь: 89,7 м²
Авторы: студия Art-Ugol, Илья Котельников, Максим Павленко, Ирина Олейникова
Фото: Наталья Бочкова
Натуральные материалы, которые использовались в этом проекте, позволили создать эффект многогранности, но благодаря грамотно продуманной геометрии их обилие не вызывает визуального диссонанса. Сочетание цветов, текстур и материалов здесь выверено до миллиметра.
Илья Котельников и Максим Павленкодизайнеры, основатели студии Art-UgolВ проекте мы стремились достичь баланса между темными и светлыми оттенками, чтобы сделать интерьер контрастным, глубоким и интересным для восприятия. Реализация была непростой, но сейчас, пройдя весь этот путь, мы однозначно можем сказать, что весь затраченный ресурс сил и времени в конечном итоге стоил результата.
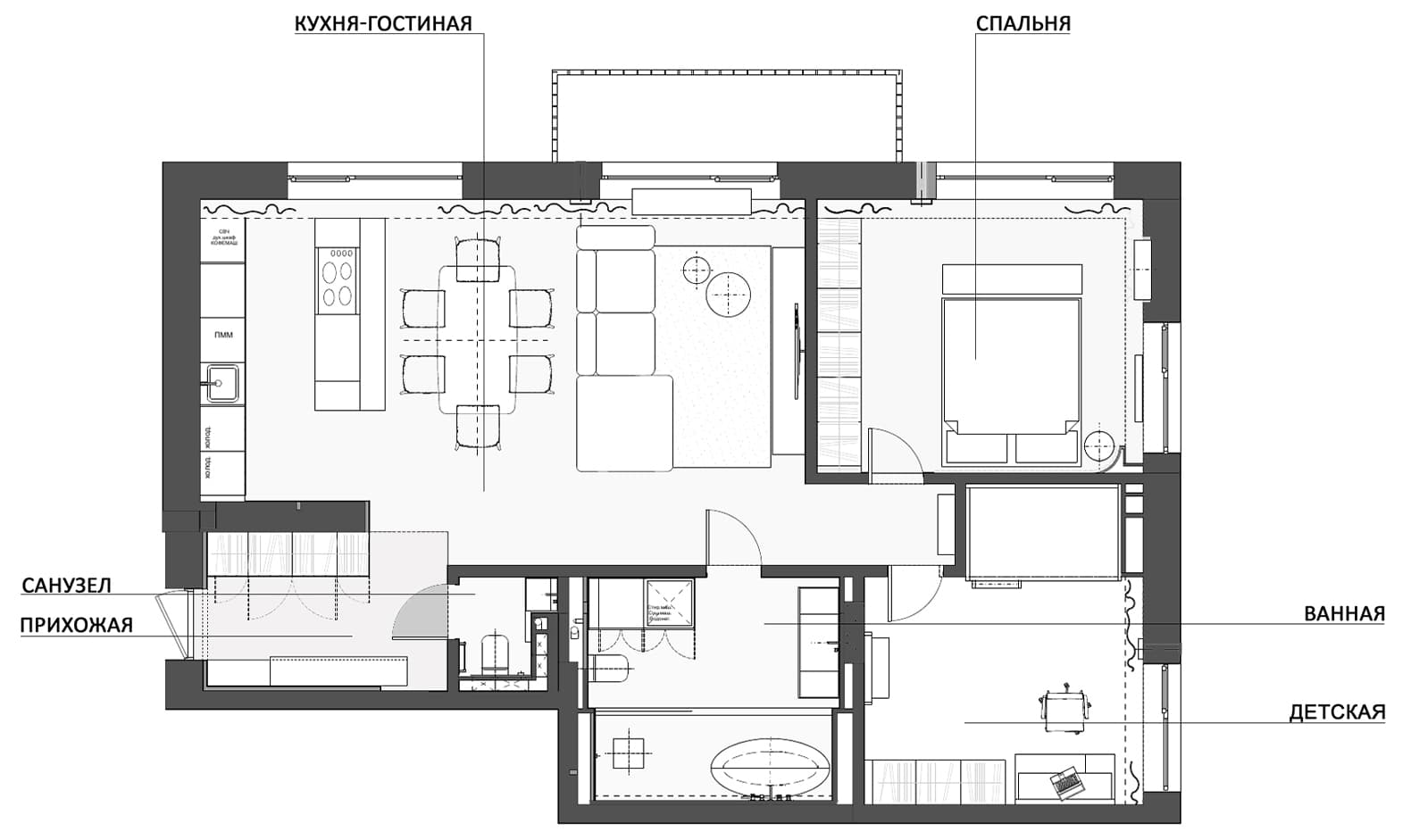
Планировка
Объект, который попал в руки дизайнеров, изначально был довольно удачным: на площадь почти в девяносто квадратных метров приходились пять высоких окон. Они наполняли пространство естественным светом и позволили свободно размещать функциональные зоны. По периметру расположились жилые комнаты: просторная кухня-гостиная, совмещенная с коридором, занимает почти половину всей квартиры.
План квартиры с мебелью
Санузлы и хозяйственные блоки вынесены в глубину помещения, где друг с другом соседствуют ванная, гостевой санузел и прихожая. Отдельную гардеробную в проекте организовать не удалось, поэтому каждая комната оснащена системами хранения. Шкафы в потолок должны вместить все необходимое.
Интерьер и решения
Палитра и контекст
Амбициозная задумка дизайнеров сделала проект сложным в реализации, поскольку команда долго ждала натуральный камень для отделки прихожей, ванной и деталей кухни. Его везли из Италии, и успешная доставка в Россию означала только половину успеха — следующим этапом была раскройка плит и создание подходящей под визуальную концепцию интерьера раскладки. Более того, монтаж тоже требовал определенных усилий — стыки сегментов хотелось сделать незаметными.
Все системы хранения в квартире были разработаны по авторским чертежам — наполнение шкафов дизайнеры подбирали точно под потребности семьи. Ключевым материалом корпусной мебели стала темная древесина. С одной стороны, она долго сохраняет эстетичный внешний вид и красиво стареет, а с другой — добавляет графичному оформлению теплоты.
Прихожая
Компактную входную группу в квартире команда студии выделила оригинальным декоративным приемом — натуральный шпон с фасадов шкафа здесь переходит на потолок. Таким образом получилась ячейка, которая подчеркивает переход объемов из небольшой прихожей в просторную гостиную.
Кухня-гостиная
Общественное пространство лучше всего отражает многогранную концепцию интерьера: стилеобразующими элементами архитектуры выступают черные оконные рамы и графичная перегородка балкона. Гостиная решена в светлой цветовой гамме: она наполнена ощущением воздуха благодаря матовой белой краске на стенах. Мягкую группу здесь формируют светло-серый диван бренда Saba Italia, журнальный столик Cattelan и серый ковер. Монохромную палитру ТВ-зоны поддерживает текстиль — регулировать степень освещенности помещения позволяют шторы в двух оттенках. От места для готовки ее визуально отделяет контраст напольных покрытий: темная древесина тут сменяется керамогранитом.
В кухне внимание гостей на себя сразу же обращает акцентный фартук из натурального камня с активным рисунком. Дизайнеры решили, что этот материал будет выигрышно смотреться в обрамлении строгих секций с дверцами из темного шпона. Благодаря размещению гарнитура вдоль одной из стен контрастный микс оттенков становится заметен из любого уголка комнаты. Выверенная пропорция светлых и темных элементов не перегружает композицию.
Переходной зоной между темной и светлой частями пространства выступила графичная столовая группа Bonaldo. Чтобы не утяжелять пространство, сюда были выбраны два подвесных светильника Flos из латуни. Сбалансировать тяжеловесные объемы призваны предметы искусства — чтобы картины подходили по размеру, Илья Котельников, Максим Павленко и Ирина Олейникова обратились к художнице. Рельеф полотен подчеркивает верхний пучковый свет.
Центром уютной приватной комнаты выступила кровать Ditre Italia с необычным обрамлением изголовья: его дополняют мягкие стеновые панели. Визуальный ритм здесь задают текстурированные «трубы», разделенные пополам декоративной вставкой в тон латуни. Эта деталь призвана разнообразить бархатистые ткани и замаскировать точечное бра для чтения. Конструкция органично вписана в архитектуру комнаты за счет плавного изгиба стены, задающего обволакивающее настроение.
Дизайнеры интегрировали в потолок подсветку, которая позволяет обыграть пространство в вечернее время
Из-за углового расположения в мастер-спальне есть сразу два окна, благодаря которым даже при небольшом метраже мрачные оттенки не кажутся давящими. За хранение в комнате отвечает шкаф с дверцами из уже привычного коричневого шпона.
Единственным пространством без строгих выразительных контрастов в проекте оказалась детская. Поскольку ребенок будет проводить здесь много времени, светлое оформление решили не захламлять лишними деталями. Изначально тут задумывался цветовой акцент в виде зеленой двухъярусной кровати, но в последний момент команда отдала предпочтение монохромной колористической карте. По задумке студии, доминантами интерьера станут яркие игрушки, книги и другие детали. Так как потенциал помещения хотелось максимально раскрыть, в нижний уровень кровати был встроен диван — дополнительное место для сна и досуга.
Возле вместительных шкафов с фрезеровкой появился «парящий» рабочий стол. Эта прочная конструкция была проверена командой уже не раз. Ее дополнительно подсветили встроенными профилями.
В санузле дизайнеры использовали свой любимый приём: они выделили объем душа и отдельностоящей ванны Salini натуральным камнем. Ванная четко передает концепцию интерьера, соединяя в себе весь контраст проекта.
Остальные предметы ванной комнаты дизайнеры сделали абсолютно белыми. Чтобы пространство не выглядело скучным и пустым, стену с раковиной они оформили нейтральной декоративной штукатуркой. Ее текстуру подсветили периметральной подсветкой, исходящей от зеркал.