
Коллекция искусства в небольшой квартире девушки-иконописца — проект Лидии Напреенко
Квартира заказчицы студии Mimosa Interiors — художницы-иконописца и реставратора — находится в здании 1953 года постройки, где когда-то жил полузащитник московского «Торпедо» Валерий Воронин. Девушка часто работает удаленно, поэтому в пространстве было важно предусмотреть комфортное место с хорошим освещением. Хозяйка хотела получить нейтральное оформление, подходящее для коллекции искусства и ее собственных работ.
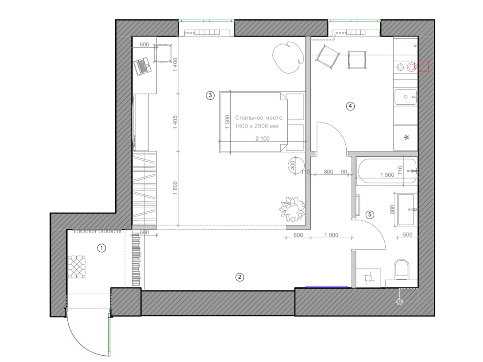
- Локация: Москва
- Площадь: 44 м²
- Авторы: студия Mimosa Interiors, Лидия Напреенко
- Фото: Илья Смирнов
Когда дизайнер впервые попала в квартиру, она неприятно удивилась состоянию объекта: исторический паркет оказался покрыт черной краской, а посреди жилой комнаты стояла газовая плита. Выяснилось, что предыдущие хозяева провели здесь незаконную перепланировку, которую требовалось вернуть к соответствующим нормам. Согласование заняло почти четыре месяца, но в итоге команде удалось расширить ванную и заново выделить коридор, который занимала кухня. Существующий потолок сначала планировали оставить, но плита перекрытия была достаточно ровной: проблему решили натяжные потолки. Чтобы создать современное пространство, команда студии Mimosa Interiors максимально разгрузила жилую площадь и покрасила стены в теплый бежевый цвет. Сдержанный оттенок не спорит с «активной» лепниной и паркетом и выигрышно подчеркивает винтажные люстры из хрусталя. Спальню от холла отделяет арка — так Лидия Напреенко обыграла большой проем и дополнительно зонировала помещения. Во входной группе разместилась коллекция искусства и арт-объектов заказчицы, а также зеркало из старого наличника, которое хозяйка квартиры самостоятельно отреставрировала, собрала и залакировала. Над кроватью расположена очень личная работа — портрет клиентки кисти Елены Потапкиной.













