
Зеркала, вертикальные линии и акцентные люстры в интерьере квартиры для супружеской пары — проект бюро BN Interior
Заказчиками этого проекта выступили активные супруги, которые много работают и любят путешествовать. Клиенты Натальи Бочиной хотели, чтобы их квартира стала местом для отдыха и расслабления. Наполнить пространство атмосферой спокойствия дизайнеру помогли песочные оттенки и естественные фактуры дерева.
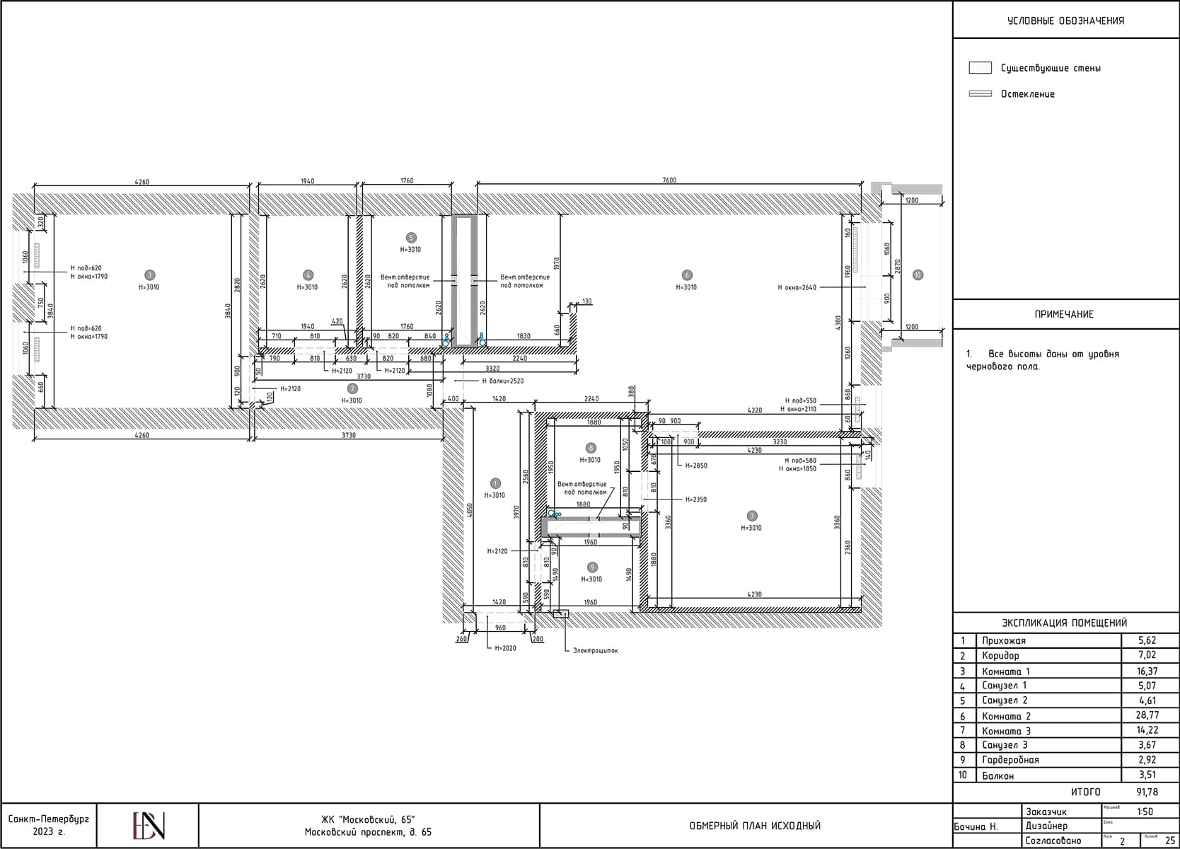
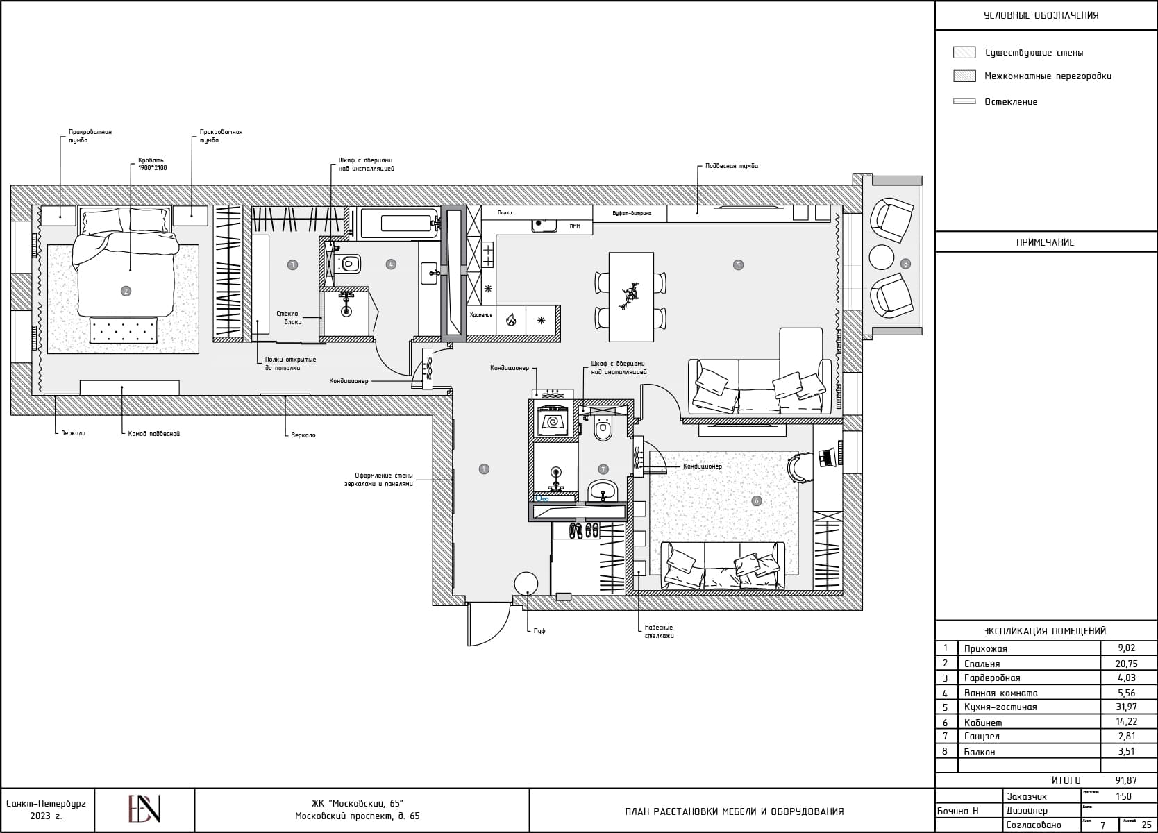
- Локация: Санкт-Петербург
- Площадь: 92 м²
- Авторы: бюро BN Interior, Наталья Бочина
- Фото: Иван Сорокин
- Стиль: Анна Крутолевич
Первым делом дизайнер отделила мастер-зону от остальной части пространства, а также разместила постирочную в нише в коридоре. Наталья Бочина использовала зеркала от пола до потолка, панели и двери, не имеющие перемычек сверху, чтобы подчеркнуть вертикальные линии в оформлении. В прихожей расположены откатные двери фабрики «Фрамир», пропускающие больше света. В интерьере преобладают два вида древесины: дуб и американский орех. На кухне дизайнер частично заменила верхние шкафы открытой полкой для хранения посуды и декора. Основным источником освещения в этой зоне стала овальная люстра Luceplan. Ее мягкие линии подчеркнуты ковром аналогичной формы. В гостиной, совмещенной с обеденной зоной и кухней, команда бюро разместила диван O’PRIME и текстильный декор. Стены спальни украшает вставка из шпонированных панелей, выполненных по эскизам BN Interior. Шкаф здесь тоже изготовили на заказ в столярной мастерской. За счет зеркала в пол и вертикальных линий команде бюро удалось визуально расширить пространство и наполнить его ощущением воздуха. В санузле использована рифленая плитка Porcelanosa, которая сочетается с геометрическим узором на светильниках. В интерьере второй ванной комнаты, расположенной при кабинете супруга, преобладают темные оттенки, а также бетонные и деревянные элементы. Плитка на балконе подчеркивает узор ограждения. Сделать эту часть квартиры более уютной и камерной помогли уличное кресло и шторы. Объемные светильники отлично вписались в интерьер и завершили композицию пространства. Наталья Бочина также использовала в качестве декора картины Давида Джахая и Татьяны Кириковой из галереи ArtMaley.
















