
Умиротворяющие краски и теплое дерево в интерьере квартиры для молодой девушки — проект студии Aleta interiors
Заказчица студии Aleta interiors — молодая девушка, которая ценит тишину, комфорт и ощущение гармонии в пространстве. Так как она ведет активный образ жизни, дом хотелось сделать настоящим «местом силы» и восстановления. Дополнительными пожеланиями к интерьеру стали практичные бытовые решения.
- Локация: Ижевск
- Площадь:100 м²
- Авторы: студия Aleta interiors
- Фото: Наталья Горбунова
- Стиль: Елена Айчувакова
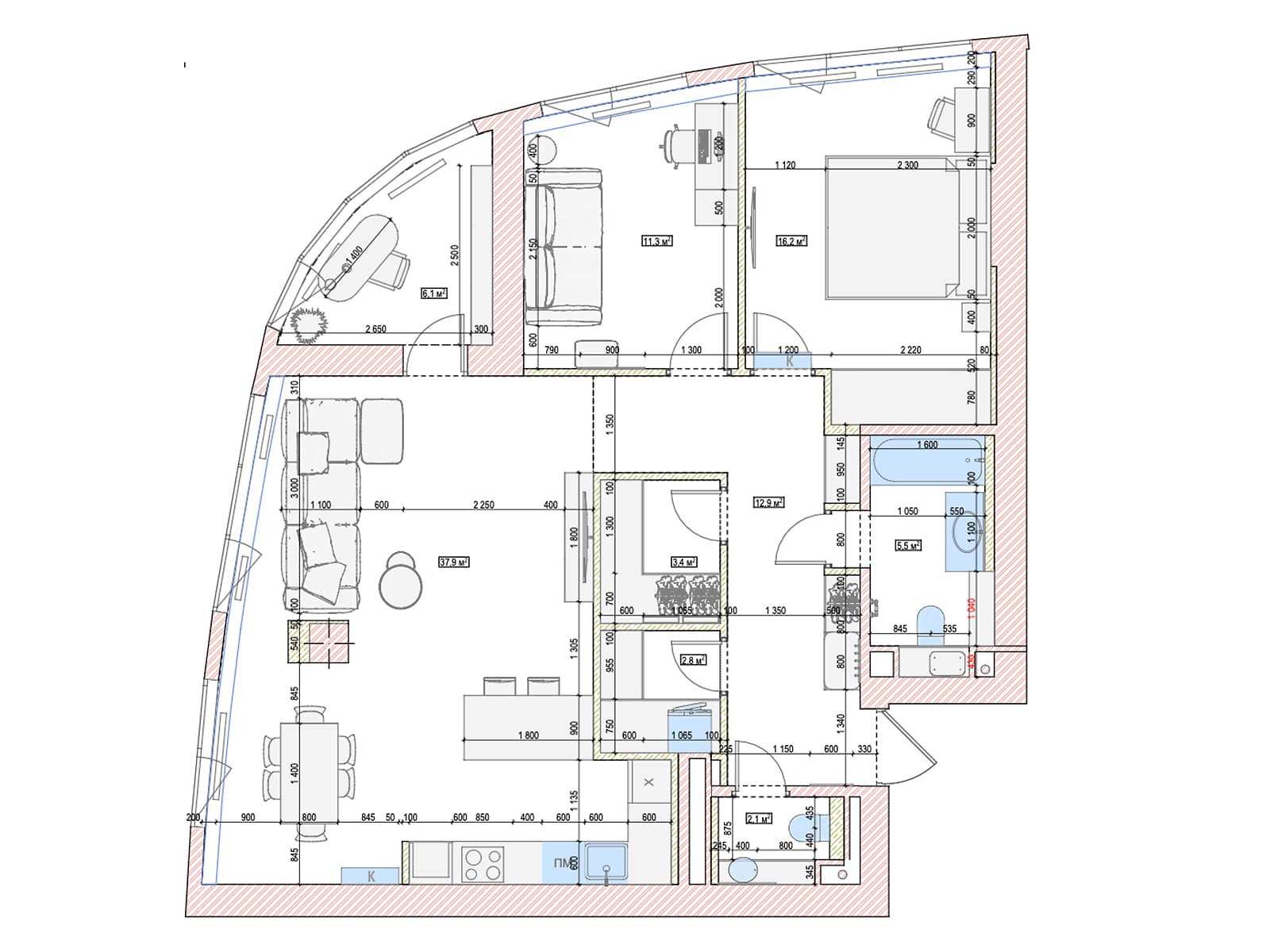
Чтобы каждый квадратный метр «работал» на хозяйку, команда разработала функциональную планировку с комфортными системами хранения и эргономичными маршрутами движения. Дизайнеры трансформировали исходное зонирование, подчеркнув ощущение воздуха в пространстве. Большие окна не стали перегружать плотным текстилем — свет свободно попадает в общественную зону с угловым диваном и обеденной группой. Вместительное хранение кухонной утвари обеспечивает скульптурный остров из керамогранита. Для гарнитура команда Aleta interiors выбрала оттенки, схожие с покраской стен. Только на верхних секциях появляется аккуратная фактура древесины. Схожий материал заметен на стеновых панелях ТВ-зоны и в корпусной мебели. Некоторые конструкции интерьера создавались на заказ — это решение позволило добиться цельного образа и сохранить индивидуальность квартиры. Сочетание светлого дерева, матовых поверхностей и деликатных деталей формирует сложную материальную палитру. В умиротворенном угловом кабинете микс теплых фактур ощущается особенно ярко за счет небольшого метража и отсутствия визуального шума.

















