
Теплый оттенок дерева и мятные акценты в интерьере квартиры для девушки — проект Юлии Бабинцевой
Интерьер этой квартиры Юлия Бабинцева создавала для девушки-студентки, приехавшей в Петербург на учебу. Заказчица попросила разработать современное оформление, настроение в котором можно будет адаптировать к изменениям предпочтений хозяйки пространства. На старте заказчики — девушка и ее родители — присылали дизайнеру безликие референсы, но в результате проект обогатили акцентными эклектичными деталями.
- Локация: Санкт-Петербург
- Площадь: 61 м²
- Автор: Юлия Бабинцева
- Фото: Иван Сорокин
- Стиль: Анна Крутолевич
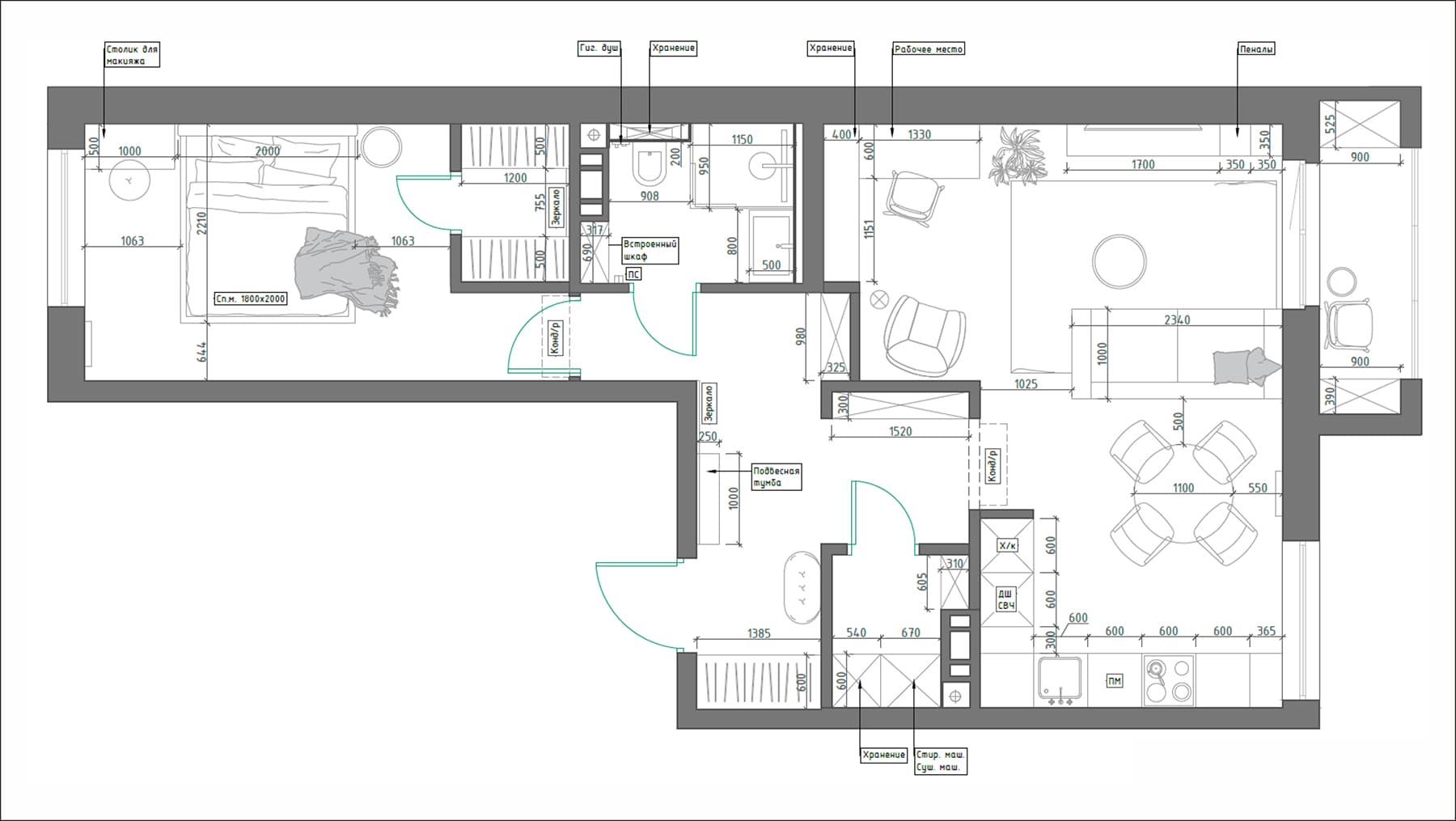
Заказчики хотели избежать масштабной перепланировки, поэтому Юлия Бабинцева практически не меняла исходное зонирование квартиры. Так, гостевой санузел заменили на постирочную, а разграничение помещений выполнили за счет расстановки предметов и работы с проемами. Пространство полностью адаптировано под образ жизни хозяйки: тут появился комфортный блок для приема гостей с кухней, столовой и эффектной мягкой группой. Подвесной светильник Handle Studio выступает самой необычной частью интерьера — плоский плафон выполнен из латуни в технике чеканки, а шар отличает эффект «битого стекла». Для учебы предусмотрели полноценную рабочую зону с письменным столом и системой хранения. Чтобы визуально увеличить квартиру, автор проекта использовала несколько дизайнерских приемов. Например, геометрический орнамент из молдингов, зрительно приподнимающий потолки. Чтобы подчеркнуть это решение, похожие элементы добавили на корпусную мебель: на кухонных шкафах рельефные панели перетекают в ритмичную филенку. В прихожей также реализованы зеркальные стены, которые наполняют комнаты светом. Цветовая гамма проекта сделала пространство универсальным: светло-серая кухня-гостиная отделена от спальни порталом припыленного мятного оттенка. Эта яркая деталь аккуратно обозначает границу приватной зоны. Ей в пару подобрали сливочные тона дерева и напольного покрытия.
















