
Сдержанный интерьер квартиры с видом на Москва-Сити — проект Кристины Кораблиной
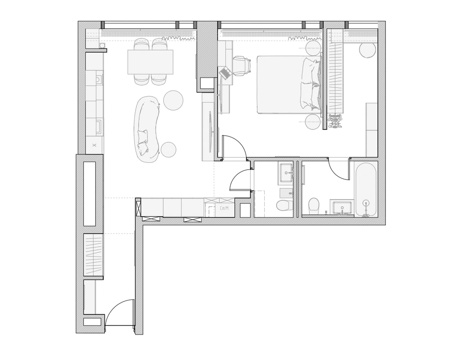
Заказчики Кристины Кораблиной еще на первой встрече с дизайнером показали целую презентацию о своих пожеланиях и вкусах. Им хотелось избавить пространство площадью шестьдесят квадратных метров от лишних деталей, сделав его органичным фоном для урбанистического пейзажа за окном. Объект сдавался с готовой отделкой, поэтому реализовать все идеи было непросто — каждое решение и предмет мебели здесь продуманы до мелочей.
- Локация: Москва
- Площадь: 60 м²
- Автор: Кристина Кораблина
- Фото: Майя Федотова
- Стиль: Виктория Звонилина
Дорабатывать планировку от застройщика не потребовалось — дизайнеру предстояло только грамотно наполнить пространство мебелью и создать визуальные акценты. Одним из достоинств объекта оказался панорамный вид на деловой центр города: он привнес в интерьер динамичности. Чтобы отделка идеально сочеталась с холодной палитрой пейзажа за окном, Кристина Кораблина обновила главные оттенки. Тон стен, эмали на дверях и плинтусах подбирали в лаборатории цвета. Выводы электрики немного сдвинули, чтобы сделать их удобнее. Ключевым недостатком зонирования выступил длинный коридор, вдоль которого располагаются системы хранения в прихожей и кухне. Сохранить в помещении ощущение воздуха без потери вместительности шкафов дизайнеру помогла сплошная покраска единого мебельного объема в светло-серый. Его дополняет шпон дуба, из которого выполнены центральные секции гарнитура и встроенные пеналы. Финальным штрихом композиции стал фартук из натурального кварцита. В тон к нему были подобраны обивки стульев и ковер. Чтобы не перегружать оформление тяжеловесной люстрой над обеденным столом, команда проекта предпочла светопрозрачную конструкцию бренда Bezhko. Почти вся корпусная мебель изготовлена на заказ, включая необычное изголовье кровати, обитое текстильными панелями. Оно отделяет место для сна от гардеробной и маленького макияжного столика хозяйки. Добавить квартире атмосферу обжитости призваны картины из галереи Reloft Art — работы Константина Данилова, Студии 30 и Андрея Шенгелии.














