
Красочный интерьер квартиры с кухней в цвете марсала — проект студии ШЕФ дизайн
Интерьер, созданный студией ШЕФ дизайн, вдохновлен японским минимализмом с элементами эклектики. Они связаны с путешествиями заказчицы — элегантной женщины, которая живет с кошкой и много ездит по миру. Теплые оттенки, темное дерево и яркие акценты оформления были выбраны исходя из образа жизни хозяйки квартиры. О питомце дизайнеры Лидия Лаптева и Михаил Бессмертных тоже позаботились: для кошки был предусмотрен специальный лаз в санузел, чтобы не оставлять дверь открытой. Лоток разместился под ванной — это решение оказалось не только функциональным, но и эстетичным. Даже ткани в проект подбирали так, чтобы они не страдали от кошачьих когтей.
- Локация: Пермь
- Площадь: 56 м²
- Авторы: студия ШЕФ дизайн, Лидия Лаптева, Михаил Бессмертных
- Фото: Виталий Жданов
- Стиль: Ольга Михайлова
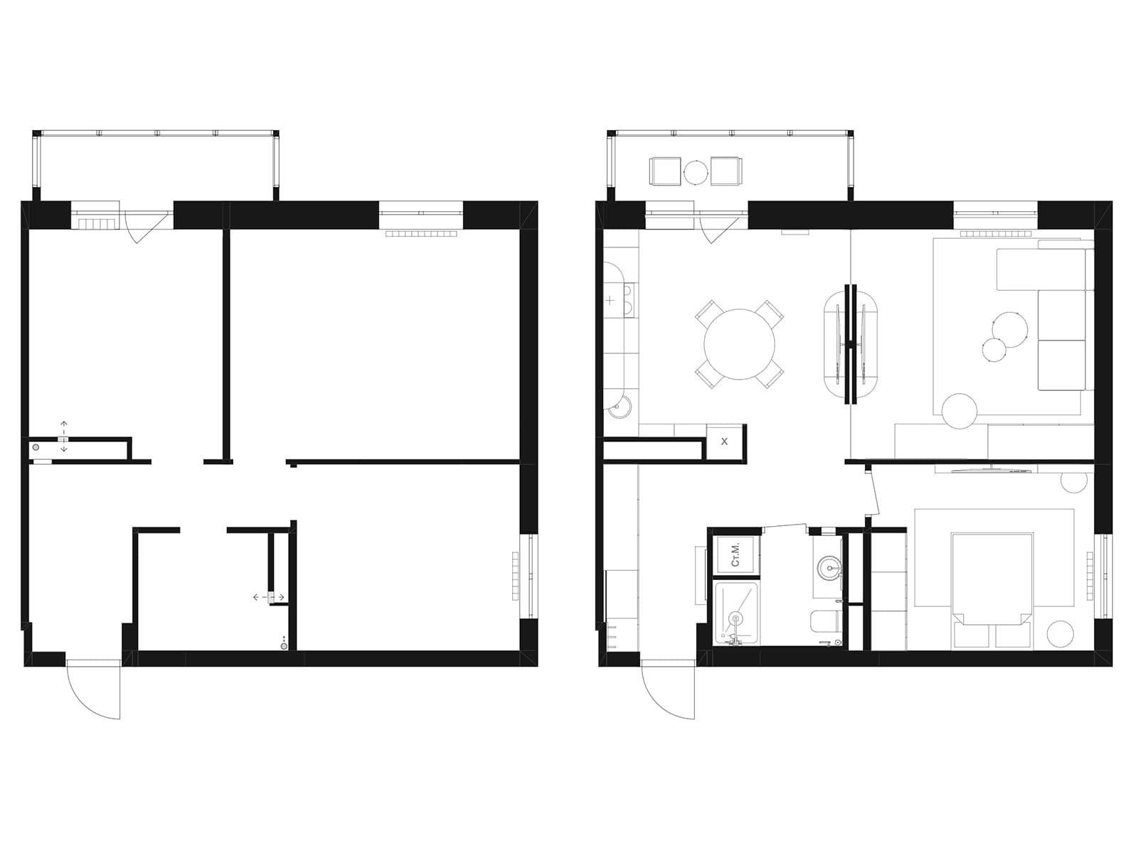
Перепланировка была минимальной, но значимой. Изначально застройщик выделил в квартире небольшую кухню с балконом, спальню и вытянутую гостиную. Компактное окно, смещенное от центра, создавало огромный теневой угол. Дизайнеры предложили передвинуть стену, чтобы увеличить место для готовки и разместить там обеденный стол. Общественное пространство они разделили раздвижной перегородкой из матового стекла. Она отсылает к традиционным японским «сёдзи» и добавляет интерьеру восточного колорита и гармонии. Конструкция наполняет естественным светом обе части помещения и позволяет сыну хозяйки дома спокойно оставаться в гостях. Особое внимание команда студии ШЕФ дизайн уделила гарнитуру без классических верхних секций. Вместо них здесь появились необычные формы, напоминающие очаг. Они решены в смелом оттенке марсала, вдохновленным палитрой Джайпура. Мебель и светильники были выполнены по индивидуальным эскизам. Например, Лидия Лаптева и Михаил Бессмертных создали объемную люстру в виде купола с имитацией пергаментной бумаги: ее пришлось делать своими руками, так как ни у одного производителя не было подходящего диаметра. Реализацию этого элемента доверили местному производству «Пермский свет». В проекте несколько эксклюзивных предметов — например, оклеенный французскими обоями Elitis с эффектом теней от листьев шкаф. Этот прием добавил оформлению лёгкой иронии: ни в одной комнате нет штор, но они появляются на фасадах шкафа. Более того, система хранения в спальне разделена на секторы, создающие иллюзию окна. Оно особенно важно, поскольку квартира находится на двенадцатом этаже, где так не хватает близости к природе.














