
Диалог между прошлым и настоящим в интерьере греческой квартиры — проект Oikonomakis Siampakoulis architects
Интерьер этой небольшой и светлой квартиры в Афинах команда греческой студии Oikonomakis Siampakoulis architects создавала для семьи музейных кураторов. Оформление разрабатывалось тщательно — так, чтобы отразить художественные вкусы и таланты его владельцев. Обширная коллекция и предметов дизайна искусства заказчиков определила будущее направление визуальной концепции.
- Локация: Афины
- Площадь: 72 м²
- Авторы: Oikonomakis Siampakoulis architects
- Фото: Алина Лефа
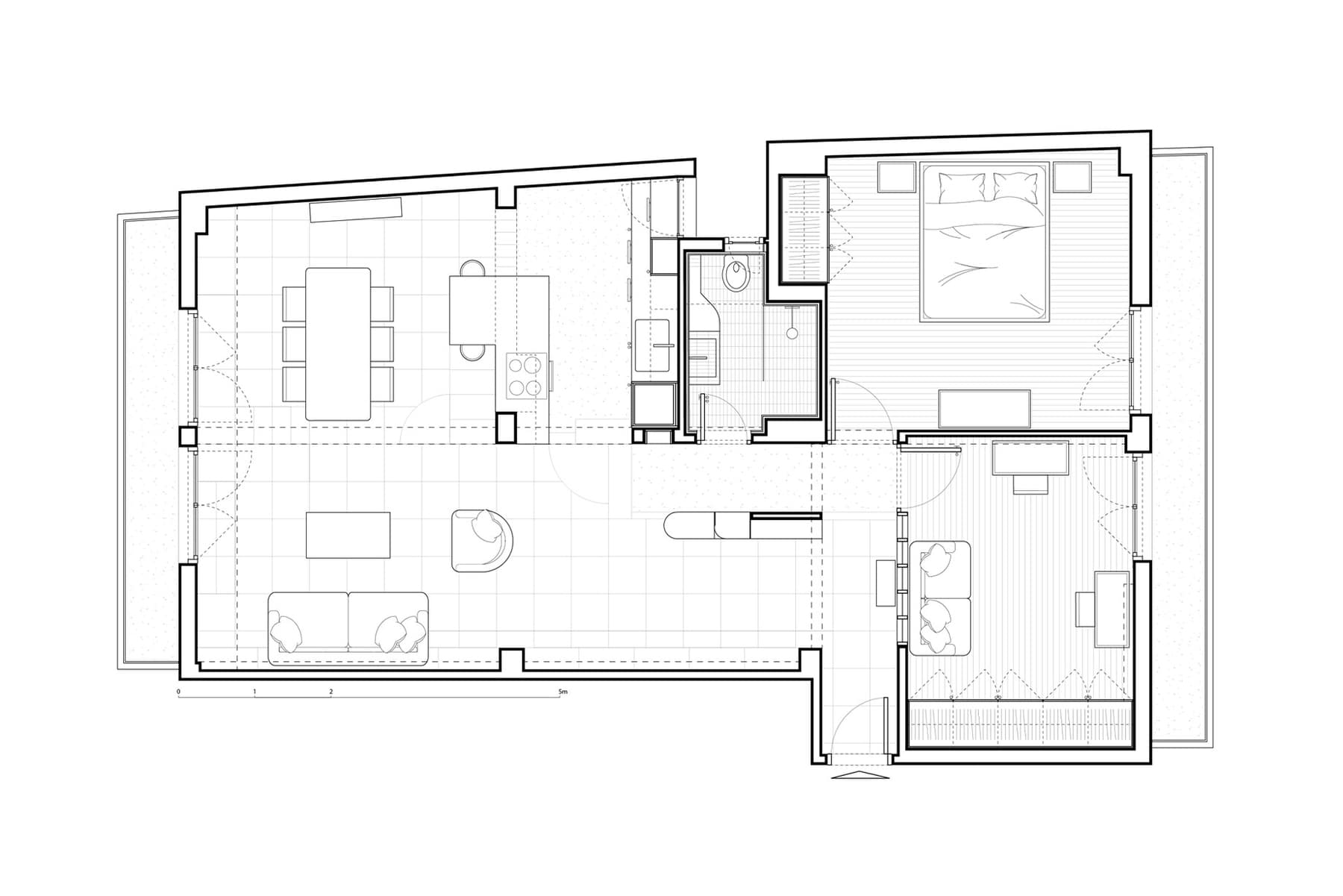
Изначально объект представлял собой типовую двухкомнатную квартиру 1970-х годов, которая со временем обросла ненужными перегородками. Их демонтаж помог сбалансировать современный дизайн и влияние мультикультурного города. Однако, клиенты студии попросили сохранить оригинальный характер дома: коричневый мрамор, красочный пол терраццо и резная мраморная раковина были интегрированы в обновленный проект. Предварительно их отреставрировали и восстановили недостающие детали. Когда гостиная, столовая, кухня и прихожая объединились в единое пространство, в нем сразу увеличилось присутствие естественного света. Сердцем дома выступил остров, облицованный плиткой в двух оттенках зеленого. Его установили между обеденной группой и уголком для готовки. Полки и мраморные детали ручной работы обеспечили место для хранения и декора. Вкрапления красной плитки в ванной комнате оказались неожиданным сюрпризом — при открытой двери санузла здесь появляются мягкие рефлексы. Одной из особенностей оформления стала изготовленная на заказ металлическая конструкция у входа. Она служит витриной для избранных произведений искусства, и заменяет снесенную перегородку, от которой осталась только часть кирпичной кладки.


















