
Российские бренды в современном интерьере для семьи дизайнера — проект студии AZBUKADOM
Интерьер этой квартиры создавался для семьи Виталия Битиева, основателя студии AZBUKADOM. Пространство хотелось сделать комфортным для проживания с детьми, поэтому авторский минималистичный взгляд на дизайн требовалось совместить с удобством для повседневной жизни.
- Локация: Санкт-Петербург
- Площадь: 70 м²
- Автор: Виталий Битиев, Azbuka Dom
- Фото: Иван Сорокин
- Стиль: Виталий Битиев
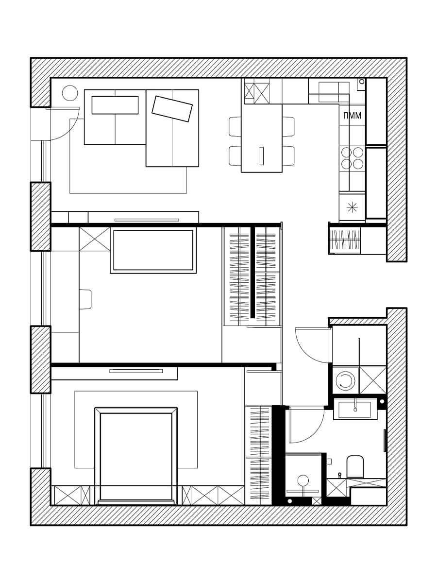
Виталий Битиев выбирал квартиру в том числе по планировке, поэтому зонирование на объекте изначально было удачным. Ориентиром для команды была максимальная лаконичность и визуальная чистота оформления. В основу интерьера легло взаимодействие объемов, фактур и света — здесь нет сугубо декоративных элементов. Особой гордостью дизайнера стала корпусная мебель, формирующая динамику пространства и стилистически вписанная в окружающую отделку. Полностью потенциал этого приема команде удалось раскрыть в общественной зоне, где фасады кухонного гарнитура становятся продолжением серо-бежевых стен. Высокие секции от пола до потолка кажутся меньше своего реального размера и решают вопрос хранения утвари и размещения бытовой техники. Выразительности этой композиции придают черные обеденные стулья и графичный торшер у мягкой группы. Модульный диван в ТВ-зоне, наоборот, не отвлекает от гаммы приглушенных природных тонов. Хозяин дома постарался использовать во всех комнатах российские бренды и показать, что уютное и функциональное пространство можно создать с помощью предметов локальных производителей. Авторское видение студии AZBUKADOM также проявилось в выборе искусства и декора. Виталий Битиев компоновал их так, чтобы рассказать глубоко личную историю, и даже сам написал художественные работы.
















