
Мягкие тона и гибкие формы в интерьере для студентки — проект Kovalchuk Interior
Этот проект студия Kovalchuk Interior создавала для молодой девушки — ранее дизайнеры уже работали над оформлением загородного дома ее семьи. На первой встрече заказчица удивила команду: сначала казалось, что новый интерьер станет продолжением предыдущего, однако у клиентки были совсем другие пожелания. Она хотела получить светлое пространство с контрастными акцентами, а свою спальню, наоборот, видела в темных тонах. В итоге получилось легкое «девичье» оформление, комфортное для жизни студентки.
- Локация: Москва
- Площадь: 55 м²
- Авторы: Kovalchuk Interior
- Фото: Сергей Красюк
- Стиль: Яна Яхина
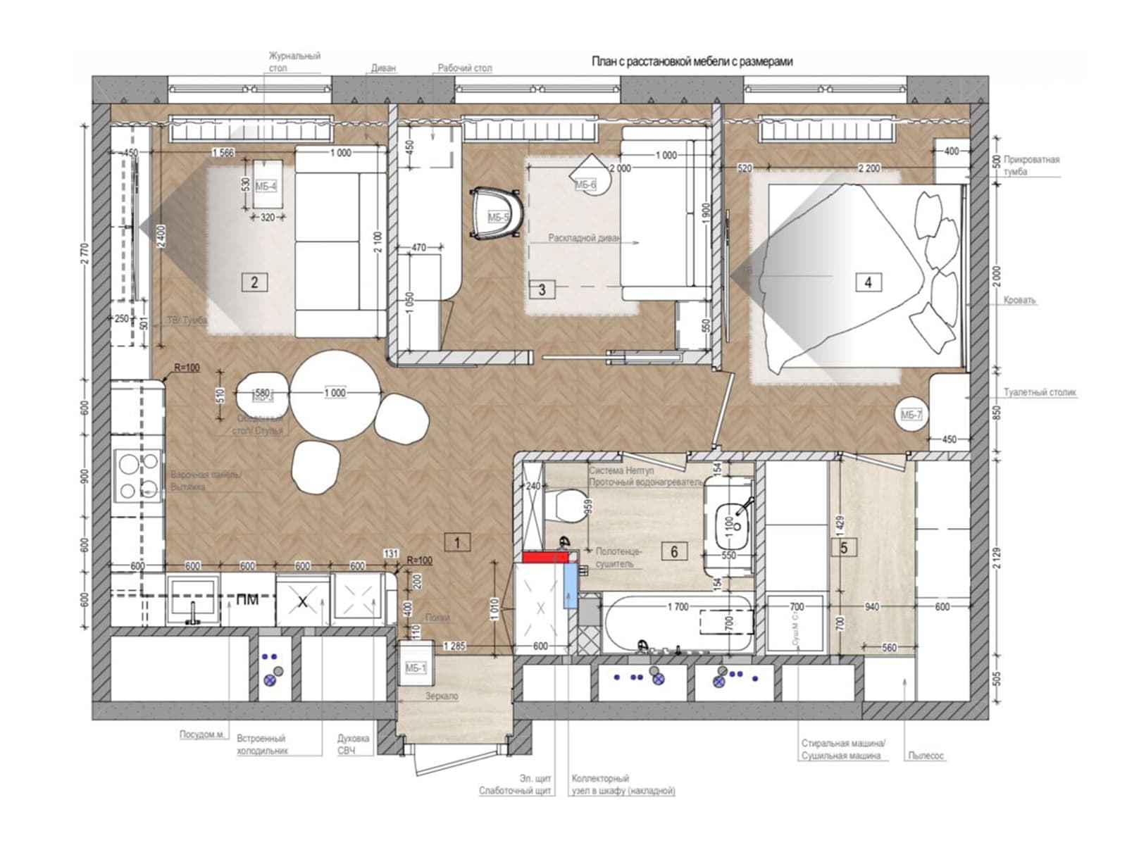
Дизайнеру предстояло рационально использовать каждый квадратный метр. Пространство разделили на три полноценных блока: изолированную кухню, гостиную с рабочим столом и комнату с собственной гардеробной. Хозяйка дома часто принимает гостей: на случай, если друзья решат остаться с ночевкой, команда предусмотрела несколько спальных мест. Кардинально менять структуру помещения не пришлось — геометрия квартиры и расположение окон задавали логику сценариев движения. Команда Kovalchuk Interior спрятала все хозяйственные элементы, сделав их незаметными и удобными в использовании. Характерной чертой интерьера выступили динамичные радиусные формы. Особой гордостью дизайнеров стала разработанная на заказ корпусная мебель. Приватная зона выполнена в обволакивающих теплых тонах, мягкость которых продолжают архитектурные решения со сглаженными углами. Необычным приемом оказался потолок без верхнего технического света: за счет мягкого освещения здесь начинают «читаться» фактуры тканей и штукатурки. В кабинете предусмотрены разные типы подсветок, тональность которых можно регулировать. Благодаря этому характер оформления легко трансформируется.




















