Мягкие краски и светлая древесина в интерьере квартиры с эффектными полками для декора — проект студии BRANCH
Мягкие краски и светлая древесина в интерьере квартиры с эффектными полками для декора — проект студии BRANCH
Для занятых заказчиков особенно важно, чтобы команда дизайнеров была способна реализовать проект самостоятельно, без необходимости их присутствия на объекте. Владельцы этой квартиры выбрали студию BRANCH не только за их запоминающийся стиль, но и за богатый опыт авторского контроля ремонтных работ. Хозяева — молодые супруги из Томска, которые влюбились в Петербург и решили туда переехать. В оформлении дома им хотелось отразить свое увлечение искусством, комиксами и винилом. Именно их любимые артефакты оказались главными героями пространства, а спокойные серые тона сформировали теплую атмосферу.
Локация: Санкт-Петербург
Площадь: 103 м²
Авторы: Дарья Лехова, студия BRANCH
Фото: Дмитрий Цыренщиков
Стиль: Мария Нечаева
Сложность переезда в другой город подтолкнула заказчиков к мысли о вневременном оформлении, которое не придется обновлять через несколько лет. Холодный современный минимализм плохо вписывался в их представления об уюте, поэтому основным направлением был выбран стиль джапанди. Благодаря ему коллекционные предметы стали органичной частью визуальной концепции: для каждого хобби клиентов Дарья Лехова нашла отдельное место.
Дарья Леховадизайнер интерьера, руководитель BRANCH STUDIOПомимо балкона с невероятными видами на крыши, я собрала в интерьере отсылки к петербургским мансардам. Ими стали ступени на балкон и декоративные балки в коридоре, создающие визуальный ритм. Я стремилась создать уютный петербургский вайб, ради которого заказчики переехали из Сибири. В результате ступени из керамогранита стали любимым местом посиделок у гостей.
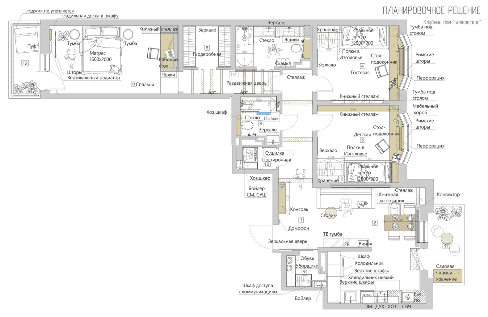
Планировка
Исходная планировка от застройщика не соответствовала потребностям клиентов, поэтому дизайнеры преобразили общественную зону. Они выделили гардеробную при входе в квартиру и частично разделили кухню с гостиной дополнительной стеной для телевизора. Теперь, даже сидя на общем диване, члены семьи не будут отвлекать хозяйку от готовки. При этом в прихожую свободно проникает естественный свет, так как перегородку, которая находилась на одной оси с окном, решили демонтировать. Так в пространстве площадью сто квадратных метров удалось разместить вместительное хранение, постирочную и два полноценных санузла.
Планировка квартиры с мебелью
На этапе обмеров дизайнеры обнаружили несколько удобных ниш — в них расположились стеллажи для декора. Одну из них команда студии обыграла полками с книгами по искусству, а культовые модели лего украсили спальню хозяев.
Интерьер и решения
Палитра и контекст
По словам Дарьи Леховой, в каждом проекте студии появляются несколько основных оттенков, которые останутся актуальными даже спустя десять лет. Часто в интерьерах преобладают серые краски, которые меняются в зависимости от времени суток. Ключевыми отделочными материалами в этой квартире стали декоративная штукатурка с эффектом замши — она играет роль ненавязчивого фона для полов из натурального дуба и предметов в пудровых, кремовых и охристых тонах.
Большая часть корпусной мебели в этом доме была создана по эскизам дизайнеров, так как нестандартная планировка требовала вдумчивого подхода. Для эркерных окон были разработаны эффективные с точки зрения естественного освещения консоли. Команда нашла применение каждой свободной нише, за счет чего метраж используется максимально рационально.
Кухня-гостиная
Теплую атмосферу объединенной общественной зоны обеспечила фактурная декоративная штукатурка — оттенок бежевого «собирает» все составляющие интерьера. Двухместный диван здесь выполнен на заказ на производстве PRODIVANI, а возле него расположился приставной столик Ansen. Его графичные линии визуально поддержали композицию из зеркала DG-Home, настольной лампы Kristina Dam Studio и черной консоли в прихожей. Изюминкой палитры материалов оказалась светлая древесина с активным рисунком. Из нее выполнены все детали обеденной группы — раздвижной стол Lagom и стулья Teak House. Винтажный светильник Viva из дуба вместе со скульптурой Variations of obsession из папье-маше добавили сюда ощущение обжитости. Для совместного досуга семьи тут предусмотрен комфортный телевизор, подвешенный на специально возведенной перегородке.
Заказчики любят готовить, поэтому проектированию кухни команда BRANCH Studio уделила особое внимание. Например, в конструкции гарнитура они организовали нишу для огромного холодильника Hitachi и отдельный шкаф для комбайна Kitchen Aid. Вся конструкция была изготовлена по авторским эскизам. Оттенить насыщенные карамельные фасады и колонны со встроенной бытовой техникой помогла мелкая квадратная плитка Wow Texiture на фартуке. Проход на балкон обозначили ступени, покрытые керамогранитом Italon с оригинальной раскладкой. Теперь во время семейных посиделок на них могут расположиться дети и друзья заказчиков.
Мастер-спальня
Акцентной деталью спальни хозяев оказалась стена за изголовьем большой кровати, украшенная декоративными рейками. Она привносит в пространство вертикальный ритм, а по вечерам наполняет его замысловатой игрой теней от круглого светильника La Forma. Мастер-блок специально решили вынести в дальнюю часть помещения, чтобы все необходимые помещения были под рукой. Так, к комнате примыкает разделенная на женскую и мужскую части гардеробная, а еще ванная с парой умывальников. В глубине комнаты разместился небольшой кабинет главы семьи, мебель для которого была изготовлена на столярном производстве в Санкт-Петербурге. Стул нашли в шоуруме Laboratory Dome. Для масштабных лего моделей требовалась особая полка, которая будет хорошо освещена в любое время дня.
Детская спальня
В детских комнатах команда студии всегда использует штукатурку под лаком или моющуюся краску, чтобы родители могли легко убрать последствия шалостей детей — например, следы от маркеров и мелков. Здесь фишкой оформления стали арки и круги серых и бежевых цветов. С выполненной на заказ кроватью LuxМебель соседствует шкаф нестандартной глубины — она составляет 80 сантиметров и позволяет организовать хранение несезонных вещей. Возле окна появилась рабочая зона с письменным столом из МДФ.
Ванная комната
Ванные комнаты решены в единой цветовой гамме: бежевые тона здесь оживляют графичные детали и линии. В компактный гостевой санузел дизайнерам удалось вместить не только раковину и унитаз Vitra, но и полноценную ванну за стеклянной перегородкой. Аналогичная перегородка из черного металла и стекла появляется в мастер-ванной. Здесь Дарье Леховой хотелось использовать отсылки к японской эстетике, поэтому в роли декора выступают керамические вазы, подвесы Odeon Light и винтажные финские бра Strömfors. Контрастные детали интерьера, в свою очередь, отсылают к любимым комиксам заказчиков.