
Обволакивающие темные тона в интерьере квартиры с антресольным этажом — проект Вероники Квасовой
Заказчик интерьера этой квартиры в московском ЖК NOW — современный молодой мужчина с четко сформулированными запросами. Его главным пожеланием был сдержанный и брутальный характер пространства с элементами стиля лофт. Вероника Квасова решила сделать оформление продолжением фасадов здания с темным кирпичом и ритмичными черными рамами. Чтобы не уходить в прямолинейные отсылки к промышленной эстетике, дизайнер отказалась от красного кирпича и других свойственных стилю лофт деталей.
- Локация: Москва
- Площадь: 78 м²
- Авторы: Вероника Квасова
- Фото: Наталья Мавренкова
- Стиль: Светлана Носова
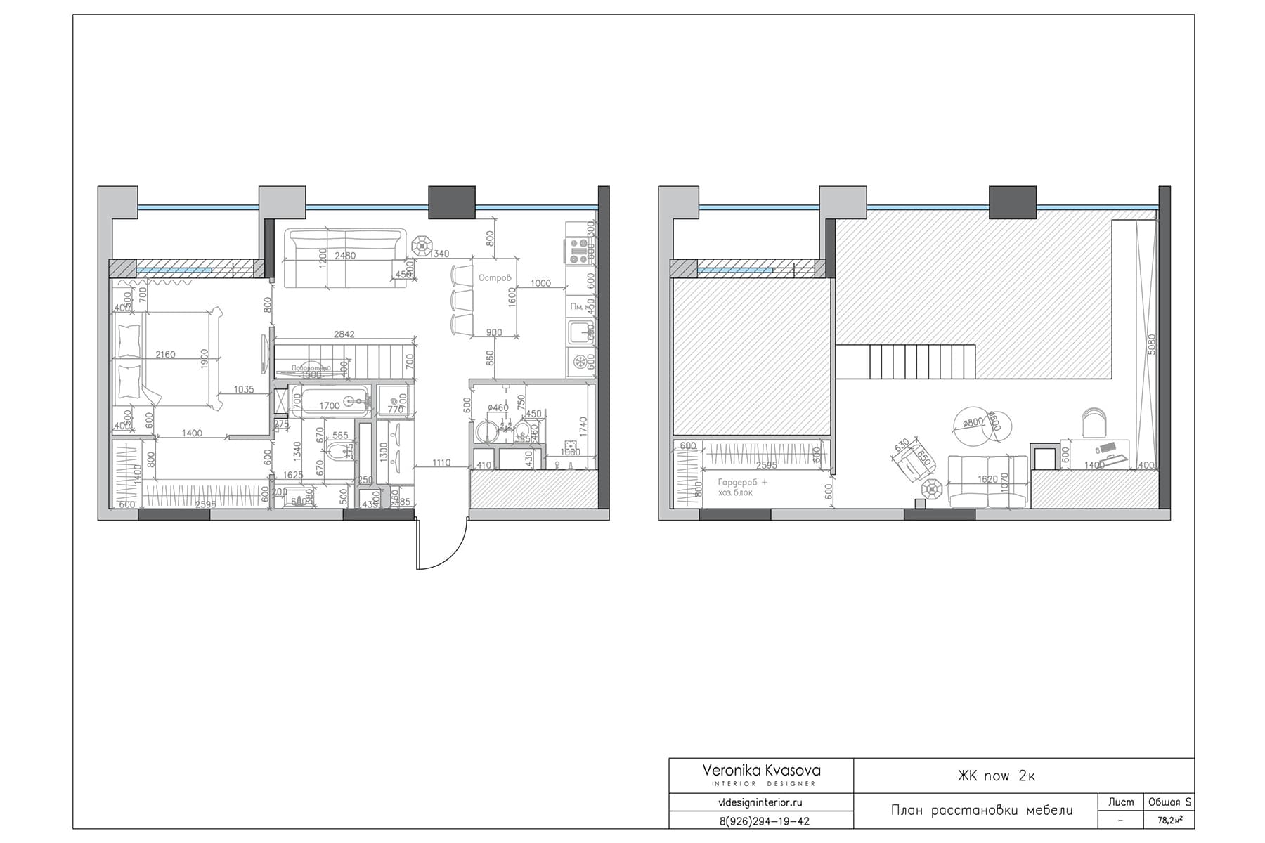
В работу дизайнерам досталось совсем небольшое пространство площадью пятьдесят пять квадратных метров с потолками высотой более четырех метров. Такие исходные данные подтолкнули команду к идее возведения антресольного этажа, который позволил в полтора раза увеличить объект. Источниками вдохновения для проекта выступили характер самого заказчика и окружающий жилой комплекс район, расположенный неподалеку от реки. Характеристики объекта навели Веронику Квасову на мысль о многопалубном судне с четким делением на блоки — в дальнейшем эта метафора была заложена в планировку. Импровизированный «трюм» разместился под антресолью. Он вмещает в себя прихожую, санузел и кухню. Стены и потолки этих помещений выкрашены в черный цвет, который призван добавить пространству глубины. Любимым элементом хозяина дома стал отдельно стоящий остров, обшитый деревом — он слегка выделяется на фоне темного гарнитура, но не спорит с ним визуально. Роль «палубы» отведена объединенной гостиной-столовой с библиотекой и рабочим местом. Композицию из модульного дивана SK Design в гостиной подчеркнул подвесной светильник Maytoni — его детали продолжают графичность ограждения лестницы и второго этажа. Внимание гостей на верхнем уровне привлекает большой стеллаж для книг, созданный в мастерской Kuhni.color. За счет обилия фактур интерьер получился атмосферным: в нем появляются бетонные панели, древесина и плитка с эффектом под ржавчину, а теплый текстиль смягчает брутальность материалов. Единственной «каютой» квартиры выступила просторная спальня с собственной гардеробной и мастер-санузлом. Финальным штрихом оформления оказалась керамика брендов Bongo Ceramics и Patinavremeni, а также искусство из Textura Gallery.













