
Хромированные молдинги и зеркальные поверхности в интерьере парижской квартиры художника — проект Моники Клинк и Сеголена Пейричу
Дизайнеры Моника Клинк и Сеголен Пейричу объединились, чтобы создать интерьер для молодого художника. Квартира находится в старом доме, поэтому важной частью проекта было сохранение исторических элементов и их гармоничное сочетание с функционализмом. Использование необычной палитры и блестящих поверхностей помогло реализовать необычное оформление.
- Локация: Париж
- Площадь: 35 м²
- Авторы: Моника Клинк и Сеголен Пейричу
- Фото: Джейд Дешай
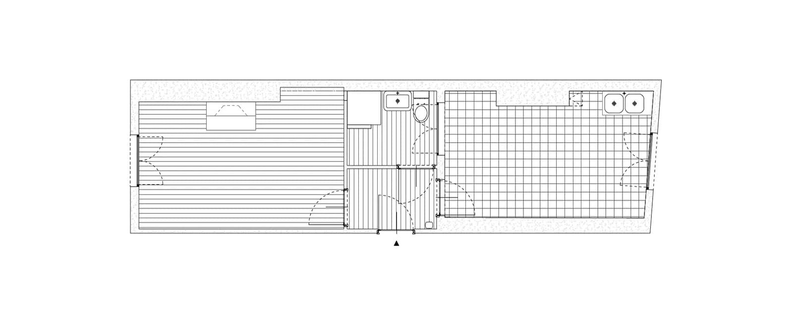
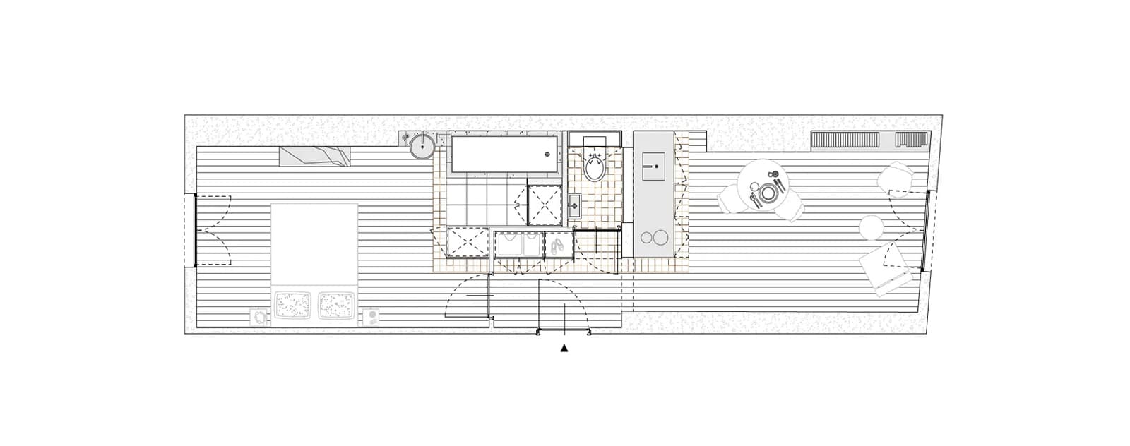
Помещение имеет вытянутую форму, что усложнило задачу дизайнеров. Команда скорректировала исходную планировку. В центре пространства расположена общественная зона, а коридор объединен при помощи санузла и кухни. Шахматная плитка и паркет в кухне разграничивают зону готовки и столовую. Дизайнеры использовали гладкую нержавеющую сталь и зеркальные поверхности, которые отражают свет. Хромированные молдинги подчеркивают линии помещения и завершают композицию. Интересной деталью выступает совмещенная с ванной спальня. Роль перегородки здесь играют белые жалюзи. Авторы проекта использовали ярко-зеленую плитку и декоративную штукатурку, чтобы визуально разграничить зоны. Постельное белье шоколадного цвета контрастирует с основной палитрой комнаты. Хромированная раковина в пол выделяется на фоне зеленых цветов и отражает естественный свет. Чтобы визуально увеличить высоту потолков, дизайнеры разместили зеркало в пол в зоне санузла. Пол здесь выложен такой же плиткой, что и на кухне.











