
Яркие акценты и отсылки к классике в интерьере семейной квартиры — проект студии AA Design
Хозяин этой петербургской квартиры работает в Москве, поэтому его семья живет на два города. Заказчик хотел получить легкое и современное оформление. Пространство должно оставаться актуальным в течение многих лет, поэтому дизайнер Алёна Александрова из студии AA Design добавила в интерьер элементы классического стиля. Запрос клиентов изначально включал в себя молодежную атмосферу, поэтому без точечных ярких акцентов и декора было не обойтись.
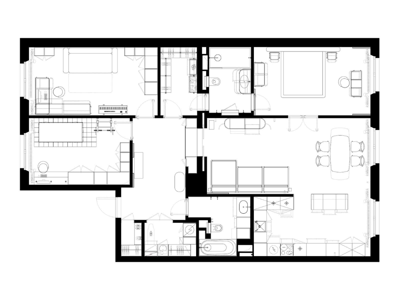
- Локация: Санкт-Петербург
- Площадь: 135 м²
- Авторы: Алёна Александрова, AA Design
- Фото: Максим Максимов
- Стиль: Наталья Стрижакова
Внушительный метраж квартиры позволил дизайнеру вместить все функциональные блоки, о которых просили заказчики. Связать их между собой призваны оригинальные порталы: ведущие в мастер-спальню и прихожую проемы подчеркивают лепной декор. Объекты в большинстве современных жилых комплексов отличаются низкими потолками, поэтому команде студии предстояло интегрировать вентиляционную систему, не сильно занижая исходную высоту. Черные обрамления портала визуально «вытягивают» пропорции, а вертикальные линии в светильниках и текстиле поддерживают их. Алёна Александрова также использовала зеркала с подсветкой, тем самым приумножив ощущение воздуха и масштаба. Так как изолированных помещений было много, двери выбирали разного формата — например, скрытого монтажа и деревянные волнистые панели. Необычным решением в гостиной оказались раздвижные перегородки DECUS из тонированного стекла. Когда они открыты, через них просматривается акцентное изголовье кровати Walls Studio желтого цвета. В общественном пространстве тему ярких красок продолжают голубые стулья UNIKA møblar, расставленные вокруг стола Carin Casa. Композицию завершили многоярусная люстра бренда Correct Form и декоративное зеркало Mirrion. Кухонный гарнитур без верхних секций решен в спокойной бело-бежевой палитре — только графичные табуреты и подвес над островом добавляют ему строгости. Изюминками интерьера в приватных зонах выступили персиковый диван Walls Studio с вышивкой и пуф в детской дочери, а также обои Fresq темно-синего оттенка в спальне сына. Команда вдумчиво работала с фактурами: природные материалы и точечные источники света привлекают внимание к сложным деталям.




















