
Выверенный и нарядный интерьер маленькой квартиры — проект Алёны Саволайниной
Хозяева этой квартиры в Москве обратились к Алёне Саволайниной с просьбой продумать практичный интерьер, который поможет выгоднее продать объект. На первой же встрече они рассказали, что хотят получить не оформление в формате классического флиппинга, а соответствующее уровню ЖК наполнение квартиры. Панорамный вид с урбанистическим пейзажем, который открывался из высоких окон квартиры, подсказал будущий характер авторского пространства.
- Локация: Москва
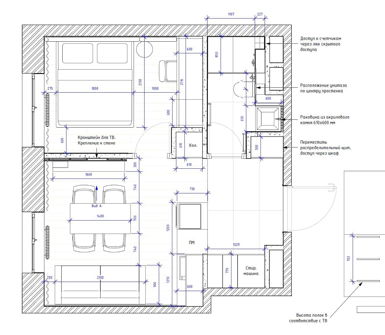
- Площадь: 31 м²
- Автор: Алёна Саволайнина
- Фото: Евгений Гнесин
Сдержанная цветовая гамма проекта продиктована портретом будущего жильца: заказчики планировали продать квартиру молодым активным людям, ценящим ритм большого города. Исходная планировка не отличалась особой функциональностью: проходы в четыре комнаты выходили в тесный холл. Сбалансировать небольшую площадь дизайнер решила с помощью чистых линий и отказа от лишних деталей. При общей лаконичности отделки она предусмотрела эффектный металлический объем кухонной вытяжки, необычные светильники и ритмичные стеновые панели. Уюта гостиной добавил рисунок тонких молдингов с оригинальной раскладкой — такое решение впускает в комнату тепло, не перегружая бюджет. Строители оценили эту задумку не сразу, но после пары перекрашиваний тоже остались довольны результатом. По словам Алёны Саволайниной, именно из желания одновременно сэкономить и создать вау-эффект рождаются самые сложные проекты. Каждый элемент здесь требовал от нее максимальной концентрации. Например, керамогранит в ТВ-зоне был собран из четырех плит стандартного размера — их подбирала вся команда. Неожиданным приемом оказалось размещение скрытого холодильника в темном встроенном шкафу напротив острова: зачастую гости даже не могут его найти. Выразительности оформлению придал прикроватный пенек в спальне, который покрасили черным маслом и привезли прямо в день съемки.


















