
Терракотовые детали и раздвижные перегородки в интерьере квартиры — проект Юлии Лезиной
Команда Юлии Лезиной начинала работу над этим проектом, когда в семье заказчиков уже был один ребенок и планировался второй. Детская продумана с учетом грядущего пополнения: комната оформлена «на вырост», так как супруги планировали прожить в этом доме не меньше десяти лет. Заказчики ждали от интерьера повышения уровня комфорта, актуальных на долгие годы решений и сложных цветовых акцентов.
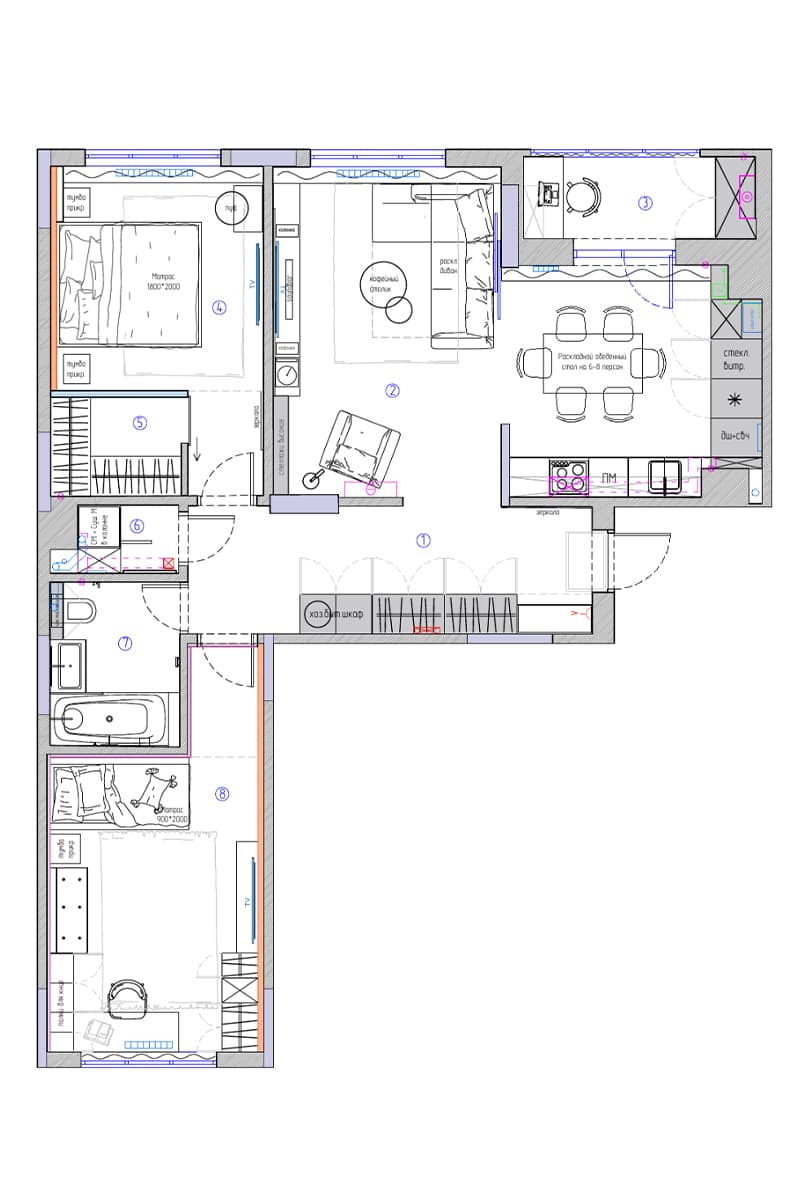
- Локация: Калининград
- Площадь: 86 м²
- Автор: Юлия Лезина
- Фото: Екатерина Валеева
- Стиль: Екатерина Яруш
Планировка квартиры должна была вмещать полноценную гардеробную, постирочную, просторную кухню-гостиную и библиотеку. Исходное решение от застройщика решили преобразить: дизайнер объединила зону отдыха и выделила хранение для одежды при спальне. При проведении замеров выяснилось, что внутри одной из стен скрываются не подлежащие сносу колонны. Из-за них Юлии Лезовой пришлось полностью переработать все чертежи так, чтобы они обыгрывали конструкции. Так в проекте появились стеклянные раздвижные перегородки и спрятанный в нише гарнитур. Характер досуговой зоны подчеркивают лаконичная библиотека, терракотовые светильники на ремнях и бордовый диван с велюровой обивкой. Стеллажи изготавливались по авторским эскизам: помимо открытых полок здесь появляются закрытые шкафы, которые вмещают книги и любимые предметы декора заказчиков. Финальными штрихами композиции стали картина художника Елены Шумахер «Саженцы» и полотно Натальи Лазаревой. Столики у мягкой группы и круглое зеркало в прихожей нашли у бренда Light&Living.















