
Стеклоблоки, металл и зеркала в интерьере квартиры для студента — проект Светланы Смирновой
Эта панорамная квартира с видом на Финский залив отличается внушительной высотой потолков — 3,4 метра. Цветовая гамма стала продолжением лаконичного серого пейзажа за окном: собранное из крупных объемов монохромное оформление оживляют выразительные фактуры. Интерьер создавался для проживания студента вплоть до окончания университета, поэтому ключевым запросом к проекту выступила актуальность визуальных решений.
- Локация: Санкт-Петербург
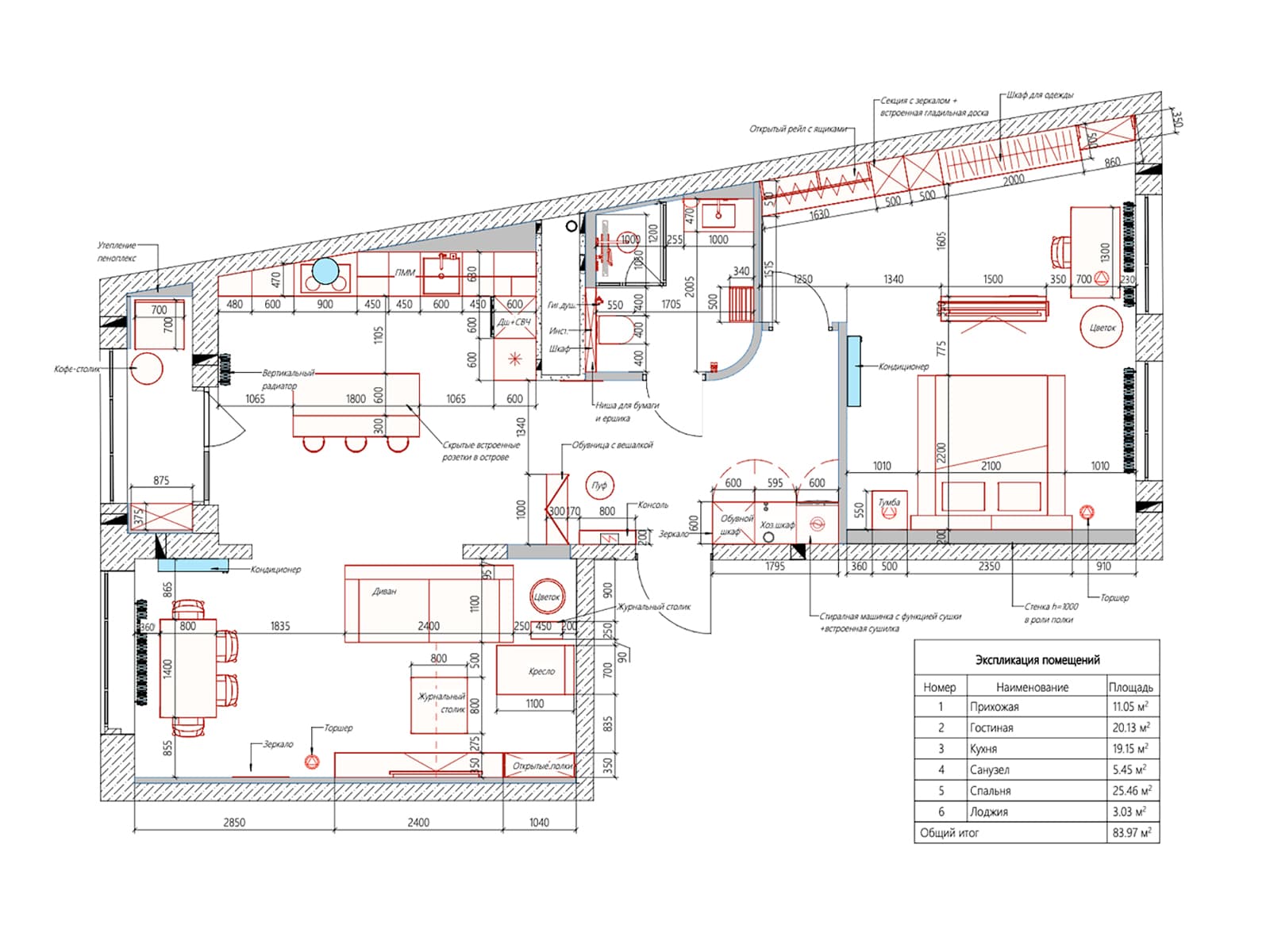
- Площадь: 87 м²
- Авторы: Светлана Смирнова, студия UPDESIGN
- Фото: Андрей Семенов
- Стиль: Татьяна Рулле
Заказчиками выступили родители молодого человека, а решения по проекту семья органично разделила между главой семьи, который взял на себя техническую часть, и его сыном — хозяином квартиры. Он планировал жить здесь во время учебы в университете. Из трехкомнатной квартиры сделали просторную однушку, в которой кухня, гостиная и две комнаты объединены в цельное пространство. Спальня, кабинет и гардеробная разделены перегородкой из стеклоблоков. Брутальность объекта дизайнеры подчеркнули дополнительными металлическими конструкциями, а вместо наливного пола использовали натуральный паркет, придающий оформлению многослойности и теплоты. Благодаря ему удалось выделить керамогранит с рисунком под камень на фасадах кухонного острова. Расположенный по соседству фартук гарнитура из строгого металла подчеркнул «мужской» характер интерьера. Оформление оживляют детали: зеленые растения и светильники из оранжевого стекла. Главной гордостью студии UPDESIGN стала «парящая» конструкция, которая разделяет пространство на зону отдыха и рабочее место. С одной стороны стойки закреплен большой телевизор, а с другой — магнитная доска для заметок. Небанальные инженерные решения также появились при создании шкафа в прихожей: его фасады из перфорированного металла закреплены на металлическом каркасе. Внутри скрываются выдвижная система для сушки белья и хозяйственный блок.















