
Буйство красок и декор ручной работы в интерьере «отпускной» квартиры — проект студии Rыба Дизайн
Изучение портфолио дизайнера перед началом работы — залог того, что клиент получит именно то пространство, за которым пришел. Так, владельцы этой квартиры в Самаре полностью доверились вкусам Айгуль Султановой из студии Rыба Дизайн. Заказчица только сказала о своей любви к коралловому цвету — в результате он оказался отправной точкой при создании цветовой гаммы. Этот дом должен был стать отпускным жильем для занятой семьи, поэтому все решения супруги согласовывали дистанционно.
- Локация: Самара
- Площадь: 110 м²
- Авторы: Студия Rыба Дизайн, Айгуль Султанова
- Фото: Дарья Копылова
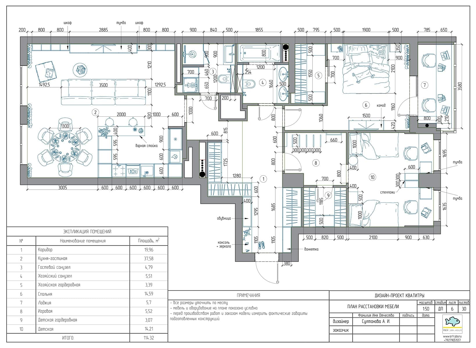
Заказчики долго ждали сдачи дома, поэтому обмерный план делали еще на стадии строительства. Переносить целые функциональные зоны команде не пришлось, но форму помещений удалось доработать — например, объединить кухню с гостиной. В результате на ста десяти квадратных метрах разместились прихожая, холл, два санузла, а также детская и взрослая спальни с собственными гардеробными. Большая кухня-гостиная стала эпицентром цвета в этой квартире: Айгуль Султанова решила не останавливаться на привычной практике сочетания двух или трех акцентных оттенков. Благодаря смелости ее заказчиков здесь появляются синие, зеленые и голубые тона. Избежать чрезмерно холодной палитры дизайнеру помогли коралловые фасады пеналов со встроенной бытовой техникой. Как и остальная корпусная мебель, они были изготовлены на заказ по авторским эскизам. Объединить все яркие элементы в интерьере призваны латунные светильники, золотистый журнальный столик и эффектный декор. Стену за изголовьем кровати в родительской спальне украсило отрисованное и напечатанное единым полотном изображение. Подвес из перьев над тумбой был выполнен вручную в Самаре, а комнату мальчиков дополнила ручная роспись от локальной художницы. По словам хозяйки дома, она ощущает себя в новом интерьере главной героиней фильма.
















