Рисунок исторической мозаики в минималистичном интерьере квартиры с антресолью — проект STUDIO BLOK
Рисунок исторической мозаики в минималистичном интерьере квартиры с антресолью — проект STUDIO BLOK
Интерьер этой необычной квартиры в Екатеринбурге создавался для молодой пары архитекторов — Андрея и Екатерины Зыриных, сооснователей STUDIO BLOK. Это их первое собственное жилье, поэтому в пространстве хотелось реализовать смелые профессиональные идеи. Материальная палитра тоже получилась экспериментальной: команда студии решила использовать фактуры, которые помогут обыграть новые технические решения. При этом оформление должно было стать комфортным местом для отдыха и досуга семьи, отражающим их образ жизни.
Локация: Екатеринбург
Площадь: 81 м²
Авторы: STUDIO BLOK
Фото: Максим Лоскутов
Отличительной особенностью объекта были высокие четырехметровые потолки, которые позволили организовать антресоль и увеличить полезную площадь. Более эргономичные сценарии движения по дому обеспечила интегрированная в стену лестница, ведущая к библиотеке и гостевой спальне.
Андрей и Екатерина Зыриныархитекторы, сооснователи STUDIO BLOKПри использовании объекта его история продолжает существовать. Мозаика могла остаться в архиве мастерской и продолжить разрушаться. Существующая историческая ценность — это основа для создания нового предмета с собственными новыми ценностями.
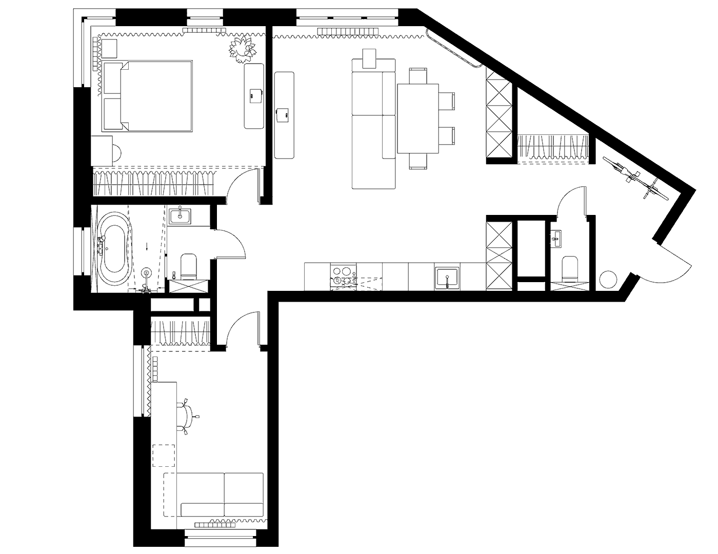
Планировка
Чтобы сделать планировку более практичной, архитекторы решили возвести над прихожей и гардеробной небольшой второй уровень. При определении будущих функциональных зон они отталкивались от своих привычек и ритуалов, которые определяют способы взаимодействия с пространством. Так стала очевидной необходимость отдельной системы хранения для книг и комнаты для друзей, которые могут остаться на ночь.
План квартиры с мебелью
Ядром квартиры выступила объединенная кухня-гостиная, куда можно попасть из асимметричной прихожей через небольшой коридор. По бокам от него получилось выделить гостевой санузел и гардеробную.
Интерьер и решения
Палитра и контекст
Ключевым материалом интерьера стал микробетон с аккуратной фактурой: им покрыты полы, тумбы и стены в санузле. Чтобы монохромная палитра не выглядела скучной, команда STUDIO BLOK выкрасила стены в контрастные тона. Особая роль в проекте отведена керамической плитке: белая использовалась в зоне кухонного гарнитура, а цветная — на акцентной столешнице. На первый взгляд, простое сочетание глянцевых и матовых текстур гарантирует долговечность и эстетическую чистоту оформления. Владельцы дома придерживаются принципов функционализма, поэтому решительно отказались от любых имитаций: все поверхности выполнены именно из того, чем кажутся.
Хозяевам дома важно легко менять атмосферу в интерьере, поэтому в проекте часто появляются светодиодные подсветки
Вопрос зонирования закрывают модульные системы хранения, которые создавались с учетом потребностей архитекторов. В них сделан акцент на функциональности и возможности адаптации под разные задачи. Гардероб в спальне тоже решен необычно: плотные фасады там заменены шторами, которые позволяют быстро менять конфигурацию развески.
Кухня-гостиная
Ахроматическая цветовая гамма общественного пространства наполняет его ощущением уюта за счет баланса бархатистых фактур и нержавеющей стали. Белые и серые оттенки визуально увеличивают помещение. На использование монохромных красок дизайнеров вдохновила общая колористическая палитра проектов их студии: команда ежедневно работает с яркими концепциями, и дома от них хочется отдыхать.
Однако совсем избежать цвета здесь не удалось: изюминкой интерьера выступил обеденный стол. Его изготовили на заказ по авторским эскизам — связанный с советской историей предмет декорирован мозаикой. Последнюю архитекторы буквально спасали при сносе завода «Серп и Молот». Над воссозданием узора трудилась вся команда: он был частично разрушен и требовал реставрации. За нее смело взялся Андрей Зырин, который вместе с супругой собрал десять схожих между собой сегментов. В таком виде арт-объект прибыл в Екатеринбург, где выяснилось, что блоки никак не складываются в единый рисунок. В этот момент начались размышления о ценности мозаики и о том, не теряется ли она со временем. В результате Екатерина сформулировала для себя мысль о вневременном значении исторических элементов декора, которые хороши даже после трансформации. Потребовалось целых 340 часов кропотливого труда на снятие деталей со старого основания, генерацию рисунка нейросетью и адаптацию его под раскладку. Однако большую часть времени заняла сама реставрация каждого кусочка и их выкладка.
Основание стола было изготовлено мебельной мастерской по авторским эскизам
Почти вся корпусная мебель в проекте выполнена на заказ компанией Домье, так как узлы примыкания фасадов просчитывали с учетом специфики объекта. Например, вписанные в ниши кухонные шкафы окружают обеденную группу со стульями по дизайну Рене Хербста. Бытовая техника разместилась в высоких пеналах с минималистичными дверцами, а роль рабочей поверхности досталась столешнице над рядом нижних секций.
Черные акценты добавили композиции глубины и строгости
Еще одним оригинальным элементом оформления выступила кастомная плитка на кухне. На ней изображены детали любимых проектов дизайнеров. При этом красной нитью через весь проект проходит тема винтажных предметов.
Несмотря на аскетичную цветовую гамму, комната хозяев наполнена мягкой и расслабленной атмосферой. Ее формирует текстиль — плотные черные портьеры и полупрозрачные белые шторы. Одна из них маскирует зону гардероба с минималистичными системами хранения. По задумке архитекторов избавленный от лишних деталей интерьер станет уголком для отдыха от ритма большого города.
Выразительные предметы декора, найденные командой проекта, имеют историческую или личную ценность. Особенно близкими по духу для владельцев дома оказались настольная лампа «Салют» и подарки дорогих людей — каслинское литье, фотоаппараты «Зенит», книги, хрустальная посуда и латунные подсвечники.
Кабинет
Оба супруга иногда могут поработать из дома, поэтому без отдельного кабинета было не обойтись. Камерность оформления тут создает точечная розовая подсветка, а индивидуальность привносит металлическая сетка для заметок. Помимо стикеров и планов на день, ее украшают фотографии и памятные открытки из путешествий.
Ванная комната
Главными принципами при проектировании санузлов стали простота и эргономика. За дверьми скрытого монтажа в них скрываются контрастные перегородки и акцентный свет. Они подчеркивают отдельно стоящую ванну с черными смесителями брендов Mike&Jake и Bagnolux.