
Бетон, акустические панели и глянцевые фасады мебели в интерьере московского офиса — проект бюро .dpt
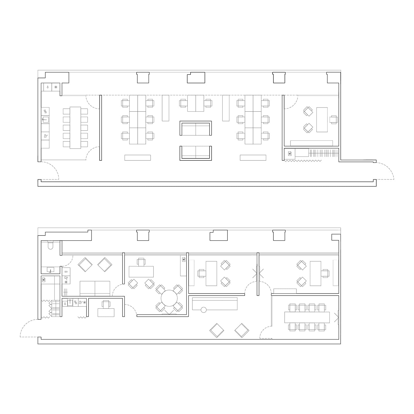
Архитектурное бюро .dpt завершило работу над интерьером офиса, расположенного в музейно-выставочном центре «Коллекция» на территории ЖК «ЗилАрт». Он занимает часть третьего этажа музея и антресольный уровень. Обилие меди в фасадах здания заказчик попросил компенсировать ее отсутствием в отделке. Ксения Караваева и Мурат Гукетлов оттолкнулись от этого запроса и выстроили мягкую палитру с сочетанием серого и бежевого оттенков. Спокойные цвета плавно проходят через все помещение, от панелей и мебели до фурнитуры. Этот проект стал для архитекторов первым опытом создания рабочего пространства.
- Локация: Москва
- Площадь: 300 м²
- Авторы: бюро .dpt, Ксения Караваева, Мурат Гукетлов
- Фото: Сергей Красюк, Krasyuk Production
Некоторые элементы исходной отделки удалось сохранить: среди них бетонные стены и наливные полы. Низкие потолки и высокая плотность инженерных систем были главными архитектурными вызовами, вставшими перед командой бюро .dpt. В результате большую часть коммуникаций решили сосредоточить в лаконичном коробе из акустических панелей. Доминантой первого этажа выступил объемный куб с лаунж-зоной внутри. Небольшое пространство с мягкими тканевыми панелями обеспечивает комфорт во время онлайн-встреч или короткой уединенной работы. Нижний уровень Ксения Караваева и Мурат Гукетлов отвели под офисы разных департаментов, кухню и изолированный кабинет. На антресоли разместились еще четыре кабинета, переговорная, компактный ресепшн и зона ожидания. Разграничить функциональные блоки призваны перепады высот потолка и текстильные шторы — одна из них как раз скрывает нишу с офисным кухонным гарнитуром. Вся мебель, в том числе рабочие столы со съемными крышками для проводов, стеллажи из нержавеющей стали и диваны на каркасах из того же профиля, создавалась на заказ по авторским эскизам. По задумке архитекторов, такое единство предметов и оформления отражают их фирменный подход, в котором все составляющие грамотной организации среды работают как единый организм.


























